梭型百葉窗簡介
梭型百葉窗百葉采用中空結構,葉片呈梭形,雙弧面,具有強度高、跨度大的特點,通過與玻璃幕墻的配合,可實現遮陽、采光、裝飾建筑物的效果。梭型百葉窗通過電機帶動葉片的旋轉,從而改變室內采光效果,達到遮陽節能的目的。
Introduction
Hollow structure designed, spindle blade with double cambered surface, high strength and large span. Reach sunshade, lighting, embellishment used on glass curtain wall. Powered by linear actuator to run the blades.
特點
1.可水平或者立式(含固定)安裝,適用于各種現代建筑的大型玻璃幕墻和玻璃天頂,平面、立面和斜面建筑室內外遮陽,結構宏偉大氣,葉片顏色可根據客戶要求選擇,完美配合建筑裝飾。
2.葉片的適宜長度根據葉片的寬度而定。
3.可多角度調節使室內人員獲得變換的視覺效果。
4.具有科技美感,葉片調整幅度在0-105°之間,不同的角度具有不同的的遮陽、調光、通風、放風、防塵、防雨等效果。根據氣候變化,隨時滿足您對采光、遮陽、通風的要求。
5.葉片顏色可根據客戶要求而定。
Features
1.Installation: vertical, crosswise, slant, used widely to large glass curtain wall, glass roof, building plane or elevation, etc.
2.The length of blade is adjusted to the width.
3.Adjustable opening angel brings various transmittance.
4.0-105° movement design, can meet different request of building lighting, sunshade, ventilation, dustproof.
5.The color can be selected by customer.
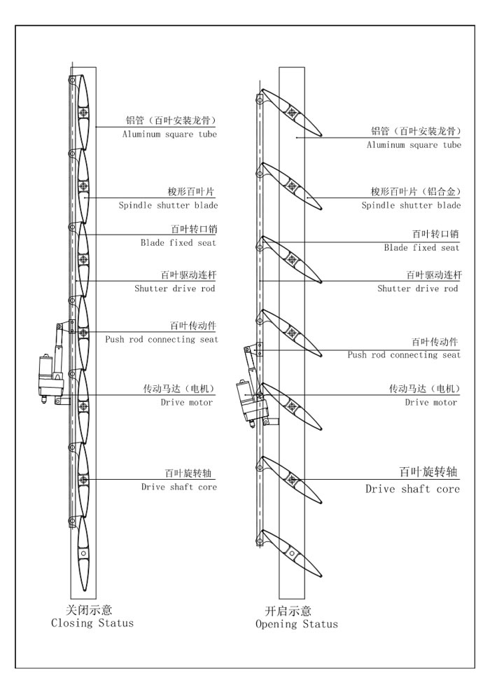
產品設計圖
技術資料
應用
.
